Retail Space with Drive Thru in Vergennes
Corner of Route 7 & Monkton Rd, Vergennes
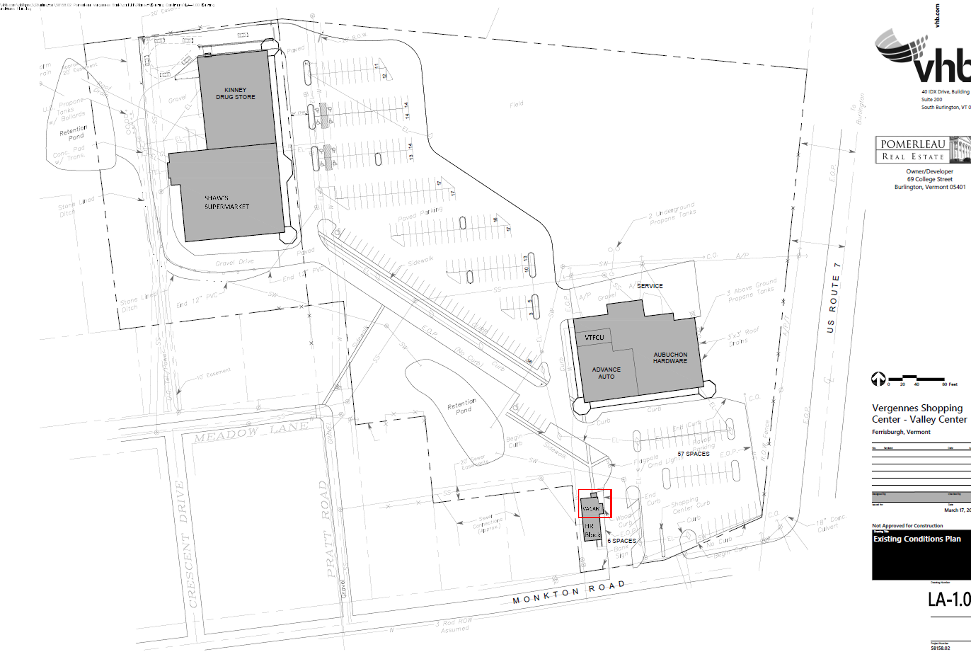
Description
- This former bank space offers one of the only existing drive-thru lanes and service windows in the immediate trade area
- Located at the front of a well-known and active shopping center
- Excellent cotenants include Shaws, Kinney Drugs, Advance Auto, Aubuchon Hardware & VT Federal Credit Union
- Strong visibility and steady traffic flow
- Located off Monkton Road, a key connector to Route 7 and surrounding communities
- Potential to expand
Property Information
County: Addison County
Size: 720 +/- SF
Price: Est. $2,800/ mo + utilities
City/Town: Vergennes
Interested in learning more about this property?
Downloads:
Download Property File Download Site Plan
Need help finding the perfect space for your needs?
Fill out the adjacent informational form and one of our real estate brokers will contact you shortly.
We look forward to working with you to find the perfect location for your needs.